









2018
OFICINAS ARISTON THERMO GROUP
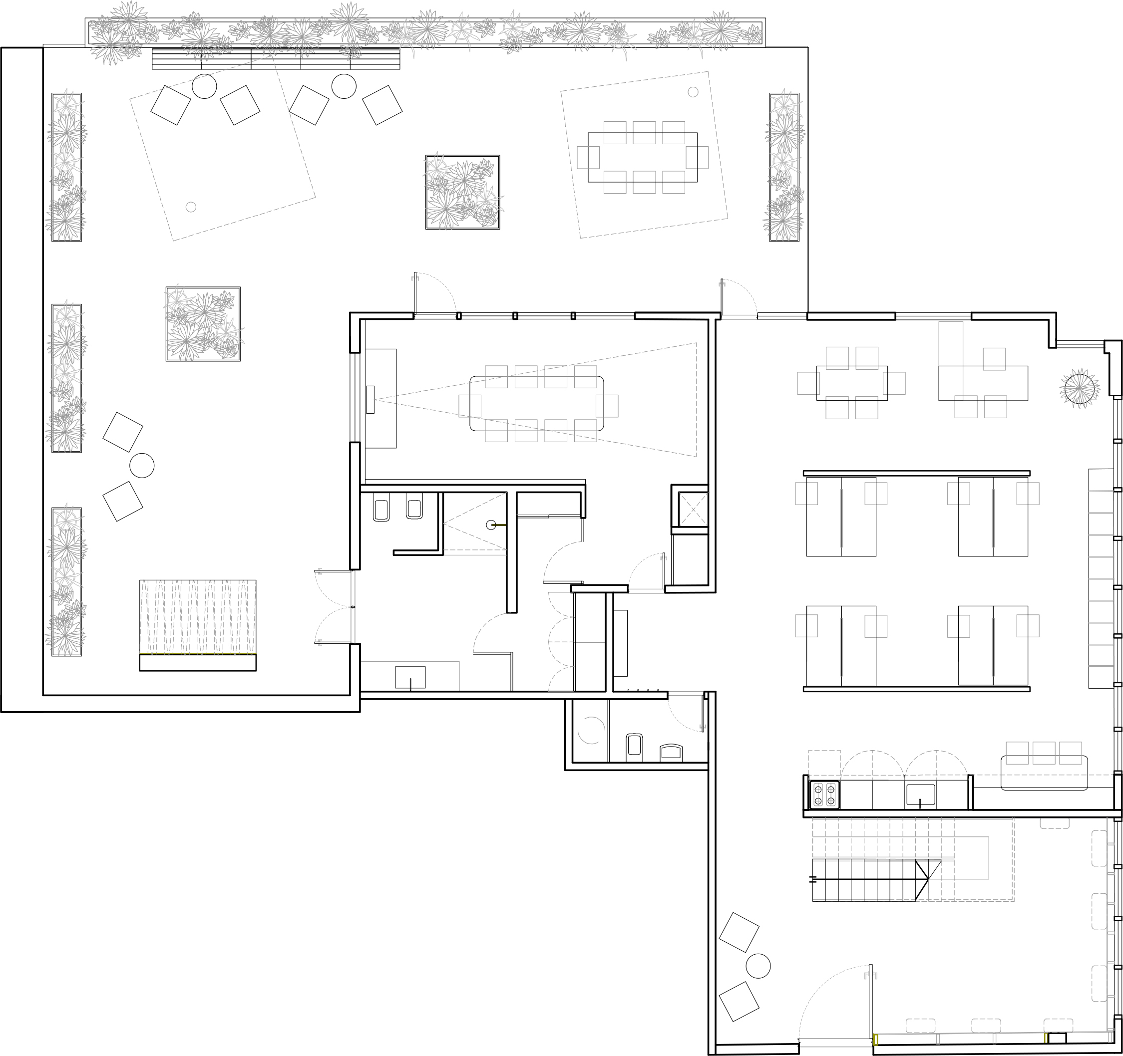
Oficinas y showrrom en la boca. buenos aires . 205m2
equipo: Daniela Fernandez
Office and Showroom , la boca , buenos aires . 205m2 . team : Daniela Fernandez
OFICINAS ARISTON THERMO GROUP
Oficinas y showrrom en la boca. buenos aires . 205m2
equipo: Daniela Fernandez
Office and Showroom , la boca , buenos aires . 205m2 . team : Daniela Fernandez
