Williamsburg Imprenta
COMERCIAL / 2018
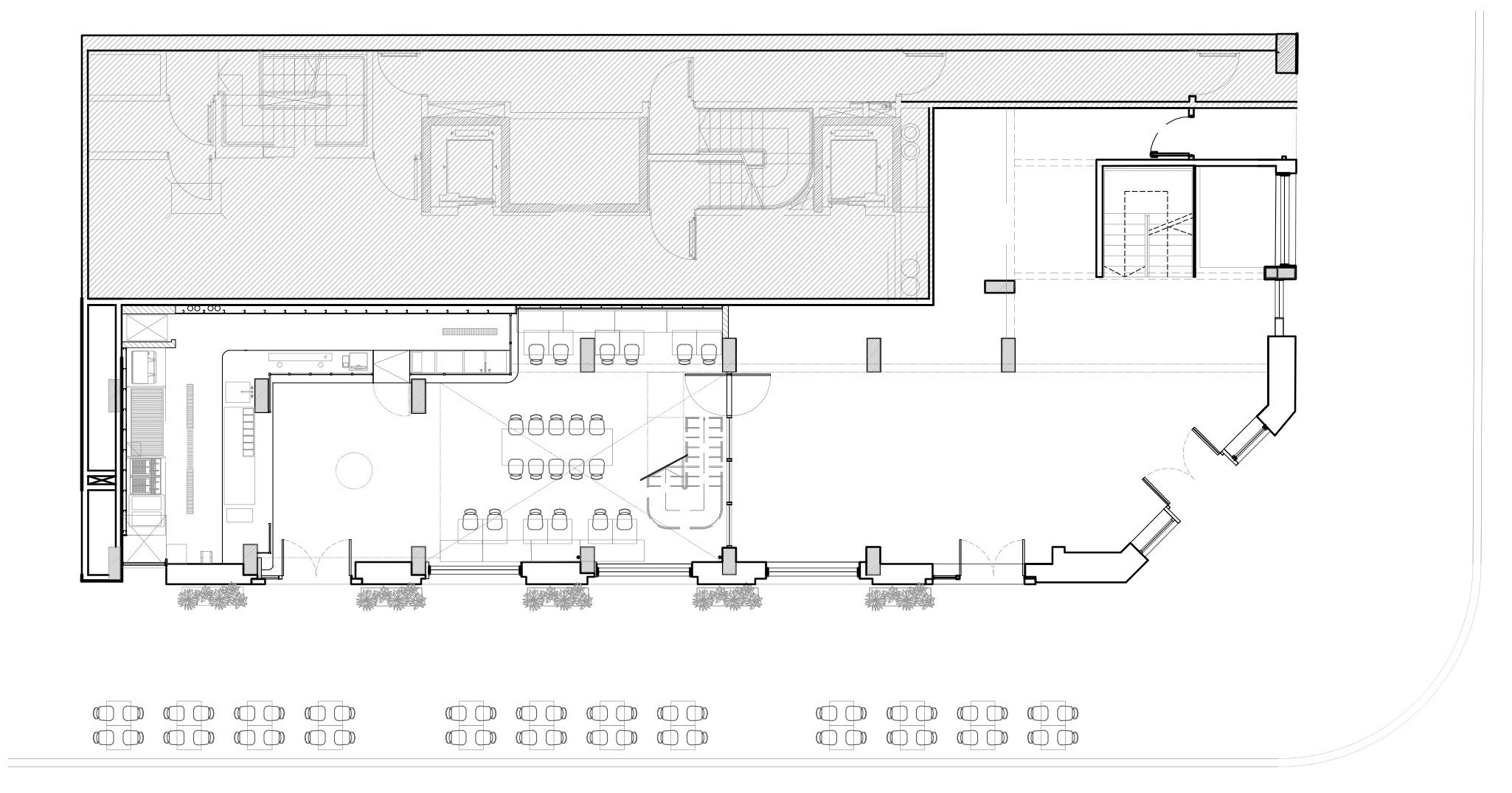
La imprenta . Cañitas . Ciudad autonoma de buenos aires. AR .









2018
WILLIAMSBURG la imprenta
Desarrollo de local comercial en las Cañitas, Buenos Aires, 246m2.
Direccion de proyecto y diseño por Horacio Gallo
Restaurant , Cañitas, Buenos Aires . Design by Horacio Gallo. 246m2
︎ LOCALES
- Armenia
- La imprenta
- Los arcos
- Nicaragua
- Alto palermo
- Libertador